Chalet - ASPEN (ASPEN3)
Présentation
Ce magnifique appartement de 190 m² sur trois niveaux accueille jusqu’à 11 personnes dans un cadre raffiné. Ce bien allie matériaux nobles, beaux volumes et un emplacement central, à proximité immédiate des commerces et des écoles de ski, idéal pour un séjour en famille ou entre amis. L'appartement partage également un espace bien être de 400m² avec piscine, spa, hammam, salle de massage et salle de sport.
Espace de vie détente et convivial
L’attique de 85 m² propose une belle pièce de vie avec un vaste salon équipé d’une cheminée centrale à trois faces. Une cuisine ouverte toute équipée (four, réfrigérateur, lave-vaisselle, machine Nespresso professionnelle, cave à vin…), une grande salle à manger conviviale, et un balcon spacieux. La décoration mêle design contemporain et esprit montagnard.
Espace nuit confortable
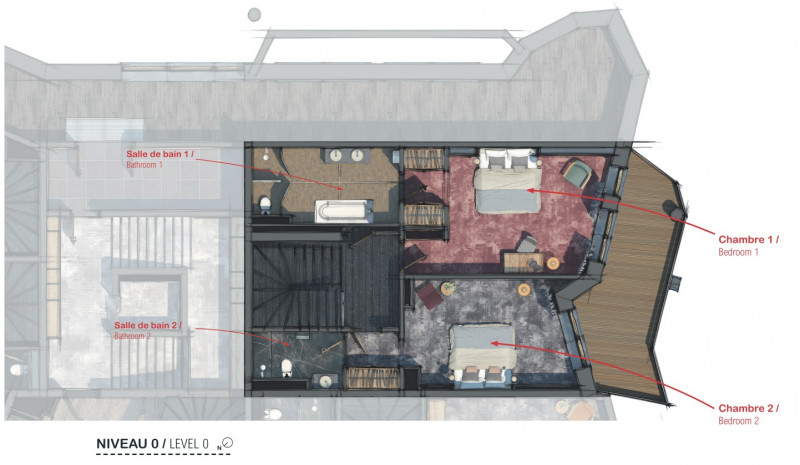
-3 suites avec lits doubles 160x200, dont : 2 suites avec salle de douche + WC et 1 suite avec baignoire, douche et WC séparé.
- 1 chambre lit double 160x200
- 1 chambre cabine fermée avec 3 lits simples : lits superposés 80x200 et lit gigogne 80x200
- 1 salle de douche partagée + WC séparé
Un espace bien-être exclusif
Pour une détente absolue après le ski, les résidents du chalet Aspen, répartis sur 5 appartements, ont accès à un espace bien-être exclusif de 400 m² comprenant une piscine intérieure chauffée, un spa en inox, et un hammam. Une cabine de massage est aussi à votre disposition (merci de consulter le concierge pour réserver vos soins). Sans oublier le vaste ski-room avec local privatif comportant chauffe chaussures, chauffe gants et casques, qui vous donnera un accès direct sur les pistes de ski.
Atouts & Détails
- Espace bien être : piscine intérieur, spa, hammam, salle de massage, salle de sport
- Vaste ski room avec chausse chaussures, gants et casque
- Espace buanderie : sèche-linge et lave-linge
- Centre Avoriaz, à deux pas du village des Enfants, accès direct aux pistes depuis le ski-room
- Exposition Sud-Est
Avantage Premium:
Nos services Premium inclus en hiver
- Petit-déjeuner livré et goûter à déguster chez notre partenaire Le R
- Ménage de départ inclus hors coin cuisine
- 1h de ménage hôtelier du dimanche au vendredi inclus
- Linge de maison et de toilette inclus et lits faits à votre arrivée
- Bois de cheminée à disposition
- Service conciergerie pour préparer votre arrivée et faciliter votre séjour à Avoriaz
- Transport station arrivée / départ inclus
Nos services Premium inclus en été
- 1h de ménage hôtelier 2 fois par semaine inclus
- Linge de maison et de toilette inclus et lits faits à votre arrivée
- Bois de cheminée à disposition
Espace de vie détente et convivial
L’attique de 85 m² propose une belle pièce de vie avec un vaste salon équipé d’une cheminée centrale à trois faces. Une cuisine ouverte toute équipée (four, réfrigérateur, lave-vaisselle, machine Nespresso professionnelle, cave à vin…), une grande salle à manger conviviale, et un balcon spacieux. La décoration mêle design contemporain et esprit montagnard.
Espace nuit confortable
-3 suites avec lits doubles 160x200, dont : 2 suites avec salle de douche + WC et 1 suite avec baignoire, douche et WC séparé.
- 1 chambre lit double 160x200
- 1 chambre cabine fermée avec 3 lits simples : lits superposés 80x200 et lit gigogne 80x200
- 1 salle de douche partagée + WC séparé
Un espace bien-être exclusif
Pour une détente absolue après le ski, les résidents du chalet Aspen, répartis sur 5 appartements, ont accès à un espace bien-être exclusif de 400 m² comprenant une piscine intérieure chauffée, un spa en inox, et un hammam. Une cabine de massage est aussi à votre disposition (merci de consulter le concierge pour réserver vos soins). Sans oublier le vaste ski-room avec local privatif comportant chauffe chaussures, chauffe gants et casques, qui vous donnera un accès direct sur les pistes de ski.
Atouts & Détails
- Espace bien être : piscine intérieur, spa, hammam, salle de massage, salle de sport
- Vaste ski room avec chausse chaussures, gants et casque
- Espace buanderie : sèche-linge et lave-linge
- Centre Avoriaz, à deux pas du village des Enfants, accès direct aux pistes depuis le ski-room
- Exposition Sud-Est
Avantage Premium:
Nos services Premium inclus en hiver
- Petit-déjeuner livré et goûter à déguster chez notre partenaire Le R
- Ménage de départ inclus hors coin cuisine
- 1h de ménage hôtelier du dimanche au vendredi inclus
- Linge de maison et de toilette inclus et lits faits à votre arrivée
- Bois de cheminée à disposition
- Service conciergerie pour préparer votre arrivée et faciliter votre séjour à Avoriaz
- Transport station arrivée / départ inclus
Nos services Premium inclus en été
- 1h de ménage hôtelier 2 fois par semaine inclus
- Linge de maison et de toilette inclus et lits faits à votre arrivée
- Bois de cheminée à disposition
+ d'infos :Services + :
Draps inclus
kit de nettoyage
Carte Privilège qui vous offre des avantages chez nos partenaires
Assurances Vacances incluse
Accueil et Service Technique 7/7
Possibilité de service à la carte
Taxe de séjour à payer sur place
Arrivées / Départs :
Les arrivées s'effectuent à partir de 17h le jour de l'arrivée et les départs jusqu'à 10h le jour du départ.
En cas d'arrivée tardive, les clés peuvent également être remises toute la nuit sur demande.
Conditions d'Annulation :
Toute somme versée ne sera pas remboursée (hors motif couvert avec l'assurance annulation incluse).
L'assurance annulation est incluse dans le prix de la location. Vous pouvez retrouver toutes les informations concernant vos droits d'annulation ici.
Conditions Générales de Vente :
Pour plus de détails sur la réservation, le paiement et les obligations, consultez nos CGV complètes ici
Besoin d'aide pour votre réservation ?
Si vous avez le moindre doute, n'hésitez pas à nous contacter à l'adresse reservations@avoriaz.com, nous sommes là pour vous aider.
Draps inclus
kit de nettoyage
Carte Privilège qui vous offre des avantages chez nos partenaires
Assurances Vacances incluse
Accueil et Service Technique 7/7
Possibilité de service à la carte
Taxe de séjour à payer sur place
Arrivées / Départs :
Les arrivées s'effectuent à partir de 17h le jour de l'arrivée et les départs jusqu'à 10h le jour du départ.
En cas d'arrivée tardive, les clés peuvent également être remises toute la nuit sur demande.
Conditions d'Annulation :
Toute somme versée ne sera pas remboursée (hors motif couvert avec l'assurance annulation incluse).
L'assurance annulation est incluse dans le prix de la location. Vous pouvez retrouver toutes les informations concernant vos droits d'annulation ici.
Conditions Générales de Vente :
Pour plus de détails sur la réservation, le paiement et les obligations, consultez nos CGV complètes ici
Besoin d'aide pour votre réservation ?
Si vous avez le moindre doute, n'hésitez pas à nous contacter à l'adresse reservations@avoriaz.com, nous sommes là pour vous aider.
En Bref
- Balcon / Terrasse

- Wifi

- Piscine / Spa

- Type d'hébergement :
- Chalet
- Classement :
- 5 étoiles
- Quartier :
- Quartier Ruches
- Superficie :
- 190 m²
- Nom de la Résidence / Chalet :
- Aspen
- Vue / Environnement :
- Vue Station
- Exposition :
- Sud / Est
- Nombre de Pièces :
- 6 pièces cabine
- Nombre de chambres :
- 5 chambres
- Nombre de personnes maximum :
- 11 personnes
- Etage :
- Sur 3 niveaux
- Animaux :
- Animaux interdits
- Proximité services :
- Proche Village des Enfants
- Proche rassemblement Evolution 2
- Proche Garderie
Équipements, Services
- Equipement Cuisine :
- Micro-ondes
- Lave-vaisselle
- Réfrigérateur
- Cafetière Nespresso
- Bouilloire
- Cave à vin
- Grille pain
- Chambre 1 :
- Suite
- 1 lit double (160x200cm)
- Salle d'Eau en Suite
- TV
- Dressing
- Balcon
- Chambre 2 :
- Suite
- 1 Lit double (160x200cm)
- Salle de Bains en Suite
- TV
- Balcon
- Dressing
- Chambre 3 :
- Suite
- 1 Lit Double (160x200cm)
- Salle d'Eau en Suite
- TV
- Chambre 4 :
- 1 Lit Double (160x200cm)
- Coin Cabine :
- Lits Superposés (80x200cm)
- 1 Lit tiroir
- Salle de Bains :
- 1 Salle(s) d'Eau
- 2 WC séparé(s)
- Sèche-Cheveux
- Balcon / Terrasse :
- 2 Balcon(s) exposé(s) Sud/Est
Descriptif détaillé
- Ascenseur :
- Ascenseur
- Equipement Séjour :
- Wifi
- TV
- Cheminée / Poêle à Bois :
- Cheminée (bois fournis)
- Lave-linge / Sèche-linge :
- Lave-linge
- Sèche-linge
- Casier à ski :
- Casier à ski
- Sèche-chaussures
- Piscine / Spa :
- Piscine intérieure chauffée
- Jacuzzi intérieur
- Hammam
- Salle de Sport
- Services :
- Logement équipé avec couettes et oreillers
- Draps inclus
- Serviettes incluses
- Caution :
- Caution à payer : 3000 €
Disponibilités
Destination
Village des Ruches
74110
AVORIAZ
Coordonnées GPS
Latitude : 46.190057
Longitude : 6.778130




















































