2 pièces - NEVA (352506)
Présentation
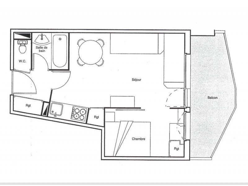
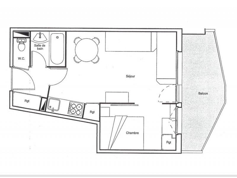
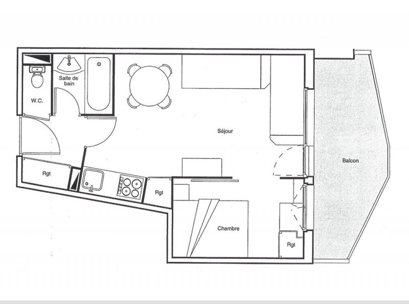
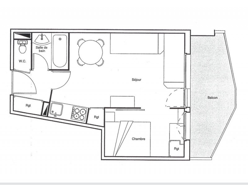
Appartement 2 pièces pour 4 à 5 personnes, au 5ème étage situé quartier de la Falaise, départ et retour skis aux pieds, proche de l'accueil station, des premières remontées mécaniques, et des commerces.
Exposé sud-est avec vue magnifique sur la montagne, les pistes et la station.
Agencé pour 4/5 personnes en couchages comme suit: 1 lit double dans la chambre (140x190). Le séjour est équipé de 2 banquettes lit une personne dont un avec lit gigogne. La chambre est séparée du séjour par une porte coulissante.
La cuisine qui s'ouvre sur l'espace repas a été entièrement refaite à l'automne 2021. Elle est équipée de plaque vitrocéramique, micro-onde grill, lave vaisselle, cafetière, bouilloire grille-pain,etc...
Une salle de bain avec baignoire et un toilette indépendant.
TV et accès Internet. (L'agence Selectis se décharge de toute responsabilité en cas de défaillance, coupure ou panne du réseau télévisé et réseau internet indépendant de l'agence)
Casier à skis
Animaux de compagnie refusés.
HIVER : Linge de lit livré dans votre appartement et ménage de fin de séjour inclus.
ETE : Ménage de fin de séjour inclus. Linge de lit (draps) et serviettes non inclus (prestations optionnelles). Cet hébergement n'est pas adhérent au disposition Multipass.
Exposé sud-est avec vue magnifique sur la montagne, les pistes et la station.
Agencé pour 4/5 personnes en couchages comme suit: 1 lit double dans la chambre (140x190). Le séjour est équipé de 2 banquettes lit une personne dont un avec lit gigogne. La chambre est séparée du séjour par une porte coulissante.
La cuisine qui s'ouvre sur l'espace repas a été entièrement refaite à l'automne 2021. Elle est équipée de plaque vitrocéramique, micro-onde grill, lave vaisselle, cafetière, bouilloire grille-pain,etc...
Une salle de bain avec baignoire et un toilette indépendant.
TV et accès Internet. (L'agence Selectis se décharge de toute responsabilité en cas de défaillance, coupure ou panne du réseau télévisé et réseau internet indépendant de l'agence)
Casier à skis
Animaux de compagnie refusés.
HIVER : Linge de lit livré dans votre appartement et ménage de fin de séjour inclus.
ETE : Ménage de fin de séjour inclus. Linge de lit (draps) et serviettes non inclus (prestations optionnelles). Cet hébergement n'est pas adhérent au disposition Multipass.
+ d'infos :Services + :
Draps inclus (l'hiver uniquement)
Ménage de fin de séjour inclus (sauf le coin cuisine)
Kit d'entretien inclus
Taxe de séjour à payer sur place
Arrivées / Départs :
Les arrivées s'effectuent à partir de 17h à l'agence directement et les départs jusqu'à 10h le jour de départ.
Conditions d'Annulation :
Assurance annulation incluse dans le prix de la location (1€). Retrouvez ce que couvre l'assurance annulation ici.
Annulation sans frais à plus de 6 mois avant la date du début du séjour.
Draps inclus (l'hiver uniquement)
Ménage de fin de séjour inclus (sauf le coin cuisine)
Kit d'entretien inclus
Taxe de séjour à payer sur place
Arrivées / Départs :
Les arrivées s'effectuent à partir de 17h à l'agence directement et les départs jusqu'à 10h le jour de départ.
Conditions d'Annulation :
Assurance annulation incluse dans le prix de la location (1€). Retrouvez ce que couvre l'assurance annulation ici.
Annulation sans frais à plus de 6 mois avant la date du début du séjour.
En Bref
- Balcon / Terrasse

- Wifi

- Type d'hébergement :
- Appartement
- Classement :
- 1 étoile
- Quartier :
- Quartier Falaise
- Superficie :
- 29 m²
- Nom de la Résidence / Chalet :
- Neva
- Vue / Environnement :
- Vue Montagne
- Vue Station
- Exposition :
- Sud / Est
- Nombre de Pièces :
- 2 pièces
- Nombre de chambres :
- 1 chambre
- Nombre de personnes maximum :
- 5 personnes
- Etage :
- 5ème étage
- Animaux :
- Animaux interdits
- Proximité services :
- Proche quais de déchargement
Équipements, Services
- Séjour :
- 2 lits banquettes et 1 lit gigogne
- Equipement Cuisine :
- Lave-vaisselle
- Chambre 1 :
- 1 lit double (140x190cm)
- Salle de Bains :
- 1 salle(s) de Bains
- WC
- 1 WC séparé(s)
- Balcon / Terrasse :
- 1 Balcon(s) exposé(s) Sud/Est
Descriptif détaillé
- Ascenseur :
- Ascenseur
- Equipement Séjour :
- Wifi
- TV
- Casier à ski :
- Casier à ski
- Services :
- Logement équipé avec couettes et oreillers
- Ménage de fin de séjour inclus
- Caution :
- Caution à payer : 700 €


































