2 pièces cabine - TILIA (244117)
Présentation
Bel appartement 2 pièces cabine pour 6 personnes rénové (automne 2015) et classé 2*. Avec balcon, exposé sud-est, il est situé au calme dans le quartier de la Falaise avec vue dégagée sur la montagne.
Au rez-de-chaussée de la résidence Tilia, départ skis aux pieds, proche de l'accueil station, des commerces et des remontées
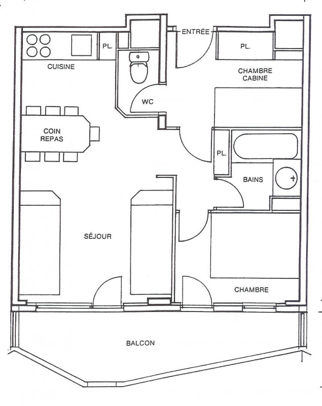
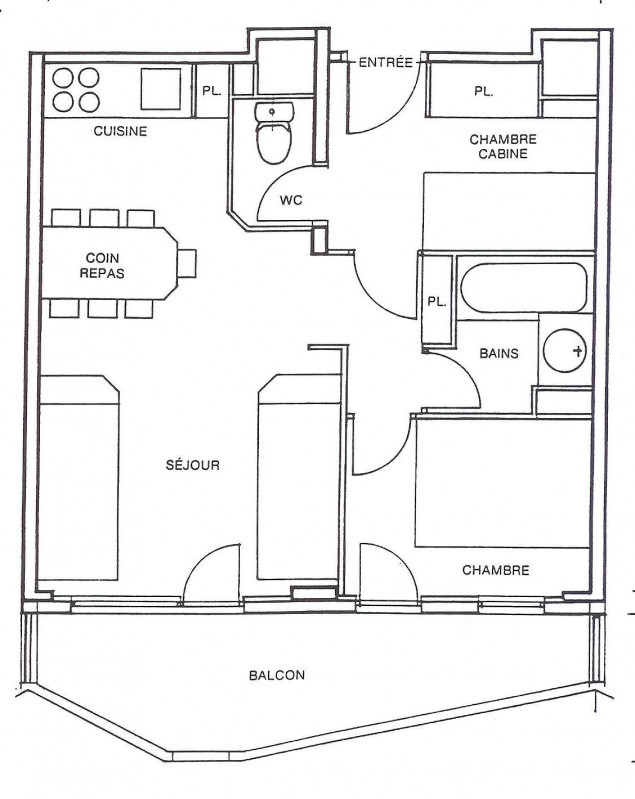
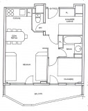
Entrée, couloir/cabine avec lits superposés, chambre avec lit double en 160, salle de bains, sèche-cheveux, toilette indépendant.
Séjour avec une banquette lit 1 personne et un lit gigogne.
Coin cuisine ouvert sur l'espace repas et le séjour, équipé d'un four micro-ondes, d'un lave-vaisselle, de plaques induction, bouilloire, cafetière Dolce Gusto...
TV et accès internet. (L'agence Selectis se décharge de toute responsabilité en cas de défaillance, coupure ou panne du réseau télévisé et réseau internet indépendant de l'agence)
Casier à skis
Appartement non-fumeur.
Animaux de compagnie refusés.
Linge de lit livré dans votre appartement et ménage de fin de séjour inclus.
Au rez-de-chaussée de la résidence Tilia, départ skis aux pieds, proche de l'accueil station, des commerces et des remontées
Entrée, couloir/cabine avec lits superposés, chambre avec lit double en 160, salle de bains, sèche-cheveux, toilette indépendant.
Séjour avec une banquette lit 1 personne et un lit gigogne.
Coin cuisine ouvert sur l'espace repas et le séjour, équipé d'un four micro-ondes, d'un lave-vaisselle, de plaques induction, bouilloire, cafetière Dolce Gusto...
TV et accès internet. (L'agence Selectis se décharge de toute responsabilité en cas de défaillance, coupure ou panne du réseau télévisé et réseau internet indépendant de l'agence)
Casier à skis
Appartement non-fumeur.
Animaux de compagnie refusés.
Linge de lit livré dans votre appartement et ménage de fin de séjour inclus.
+ d'infos :Services + :
Draps inclus (l'hiver uniquement)
Ménage de fin de séjour inclus (sauf le coin cuisine)
Kit d'entretien inclus
Taxe de séjour à payer sur place
Arrivées / Départs :
Les arrivées s'effectuent à partir de 17h à l'agence directement et les départs jusqu'à 10h le jour de départ.
Conditions d'Annulation :
Assurance annulation incluse dans le prix de la location (1€). Retrouvez ce que couvre l'assurance annulation ici.
Annulation sans frais à plus de 6 mois avant la date du début du séjour.
Conditions Générales de Vente :
Pour plus de détails sur la réservation, le paiement et les obligations, consultez nos CGV complètes ici
Besoin d'aide pour votre réservation ?
Si vous avez le moindre doute, n'hésitez pas à nous contacter à l'adresse reservations@avoriaz.com, nous sommes là pour vous aider.
Draps inclus (l'hiver uniquement)
Ménage de fin de séjour inclus (sauf le coin cuisine)
Kit d'entretien inclus
Taxe de séjour à payer sur place
Arrivées / Départs :
Les arrivées s'effectuent à partir de 17h à l'agence directement et les départs jusqu'à 10h le jour de départ.
Conditions d'Annulation :
Assurance annulation incluse dans le prix de la location (1€). Retrouvez ce que couvre l'assurance annulation ici.
Annulation sans frais à plus de 6 mois avant la date du début du séjour.
Conditions Générales de Vente :
Pour plus de détails sur la réservation, le paiement et les obligations, consultez nos CGV complètes ici
Besoin d'aide pour votre réservation ?
Si vous avez le moindre doute, n'hésitez pas à nous contacter à l'adresse reservations@avoriaz.com, nous sommes là pour vous aider.
En Bref
- Balcon / Terrasse

- Wifi

- Type d'hébergement :
- Appartement
- Classement :
- 2 étoiles
- Quartier :
- Quartier Falaise
- Superficie :
- 34 m²
- Nom de la Résidence / Chalet :
- Tilia
- Vue / Environnement :
- Vue Montagne
- Vue Pistes
- Vue Station
- Exposition :
- Sud / Est
- Nombre de Pièces :
- 2 pièces cabine
- Nombre de chambres :
- 1 chambre
- Nombre de personnes maximum :
- 6 personnes
- Etage :
- Rez de chaussée
- Animaux :
- Animaux interdits
- Proximité services :
- Proche quais de déchargement
Équipements, Services
- Séjour :
- 1 lit banquette et 1 lit gigogne
- Equipement Cuisine :
- Lave-vaisselle
- 4 Plaques induction
- Cafetière Dolce Gusto
- Chambre 1 :
- 1 lit double (160x200cm)
- Coin Cabine :
- Lits Superposés
- Salle de Bains :
- 1 salle(s) de Bains
- WC
- 1 WC séparé(s)
- Balcon / Terrasse :
- 1 Balcon(s) exposé(s) Sud/Est
Descriptif détaillé
- Ascenseur :
- Ascenseur
- Equipement Séjour :
- Wifi
- TV
- Casier à ski :
- Casier à ski
- Services :
- Logement équipé avec couettes et oreillers
- Ménage de fin de séjour inclus
- Caution :
- Caution à payer : 700 €
Disponibilités
Destination
74110
AVORIAZ
Coordonnées GPS
Latitude : 46.19461
Longitude : 6.76853






























