2 pièces - HOTEL DE LA FALAISE (457604)
Présentation
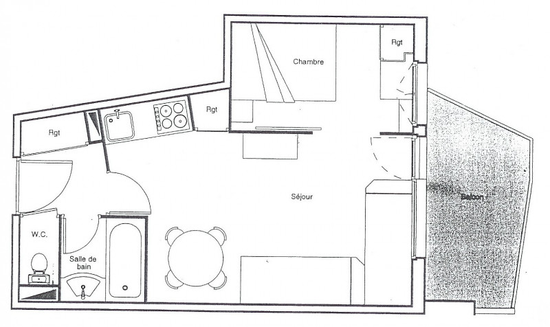
Bel appartement 2 pièces, 30m², au 6ème et dernier étage de la résidence Hôtel de la Falaise (Chapka) avec ascenseur et balcon.
Situé sur le quartier de la Falaise au calme, proche de l'accueil station, des premières remontées mécaniques, et des commerces. Départ et retour skis aux pieds.
Cuisine équipée de plaques vitrocéramiques, micro-ondes, minifour, réfrigérateur, lave vaisselle, cafetière, grille-pain, bouilloire...
Salle de bain avec baignoire, toilette indépendant.
Une chambre avec lit double, le séjour accueille 3 couchages simples sous forme de 2 banquettes lit une personne dont une avec un lit gigogne.
Vous trouverez également un écran de télévision LCD, accès internet. (L'agence Selectis se décharge de toute responsabilité en cas de défaillance, coupure ou panne du réseau télévisé et réseau internet indépendant de l'agence)
Animaux de compagnie refusés.
HIVER : Linge de lit livré dans votre appartement et ménage de fin de séjour inclus.
ETE : Ménage de fin de séjour inclus. Linge de lit (draps) et serviettes non inclus (prestations optionnelles). Cet hébergement n'est pas adhérent au disposition Multipass.
Situé sur le quartier de la Falaise au calme, proche de l'accueil station, des premières remontées mécaniques, et des commerces. Départ et retour skis aux pieds.
Cuisine équipée de plaques vitrocéramiques, micro-ondes, minifour, réfrigérateur, lave vaisselle, cafetière, grille-pain, bouilloire...
Salle de bain avec baignoire, toilette indépendant.
Une chambre avec lit double, le séjour accueille 3 couchages simples sous forme de 2 banquettes lit une personne dont une avec un lit gigogne.
Vous trouverez également un écran de télévision LCD, accès internet. (L'agence Selectis se décharge de toute responsabilité en cas de défaillance, coupure ou panne du réseau télévisé et réseau internet indépendant de l'agence)
Animaux de compagnie refusés.
HIVER : Linge de lit livré dans votre appartement et ménage de fin de séjour inclus.
ETE : Ménage de fin de séjour inclus. Linge de lit (draps) et serviettes non inclus (prestations optionnelles). Cet hébergement n'est pas adhérent au disposition Multipass.
+ d'infos :Services + :
Draps inclus (l'hiver uniquement)
Ménage de fin de séjour inclus (sauf le coin cuisine)
Kit d'entretien inclus
Taxe de séjour à payer sur place
Arrivées / Départs :
Les arrivées s'effectuent à partir de 17h à l'agence directement et les départs jusqu'à 10h le jour de départ.
Conditions d'Annulation :
Assurance annulation incluse dans le prix de la location (1€). Retrouvez ce que couvre l'assurance annulation ici.
Annulation sans frais à plus de 6 mois avant la date du début du séjour.
Draps inclus (l'hiver uniquement)
Ménage de fin de séjour inclus (sauf le coin cuisine)
Kit d'entretien inclus
Taxe de séjour à payer sur place
Arrivées / Départs :
Les arrivées s'effectuent à partir de 17h à l'agence directement et les départs jusqu'à 10h le jour de départ.
Conditions d'Annulation :
Assurance annulation incluse dans le prix de la location (1€). Retrouvez ce que couvre l'assurance annulation ici.
Annulation sans frais à plus de 6 mois avant la date du début du séjour.
En Bref
- Balcon / Terrasse

- Wifi

- Type d'hébergement :
- Appartement
- Classement :
- 2 étoiles
- Quartier :
- Quartier Falaise
- Superficie :
- 30 m²
- Nom de la Résidence / Chalet :
- Hotel de la Falaise
- Vue / Environnement :
- Vue Montagne
- Vue Station
- Exposition :
- Sud / Est
- Nombre de Pièces :
- 2 pièces
- Nombre de chambres :
- 1 chambre
- Nombre de personnes maximum :
- 5 personnes
- Etage :
- 6ème étage
- Animaux :
- Animaux interdits
- Proximité services :
- Proche quais de déchargement
Équipements, Services
- Séjour :
- 2 lits banquettes et 1 lit gigogne
- Equipement Cuisine :
- Mini four
- Lave-vaisselle
- Réfrigérateur
- Chambre 1 :
- 1 lit double
- Salle de Bains :
- 1 salle(s) de Bains
- WC
- 1 WC séparé(s)
- Balcon / Terrasse :
- 1 Balcon(s) exposé(s) Sud/Est
Descriptif détaillé
- Ascenseur :
- Ascenseur
- Equipement Séjour :
- Wifi
- TV
- Casier à ski :
- Casier à ski
- Services :
- Logement équipé avec couettes et oreillers
- Ménage de fin de séjour inclus
- Caution :
- Caution à payer : 700 €


























